Toggle navigation
Overview Map
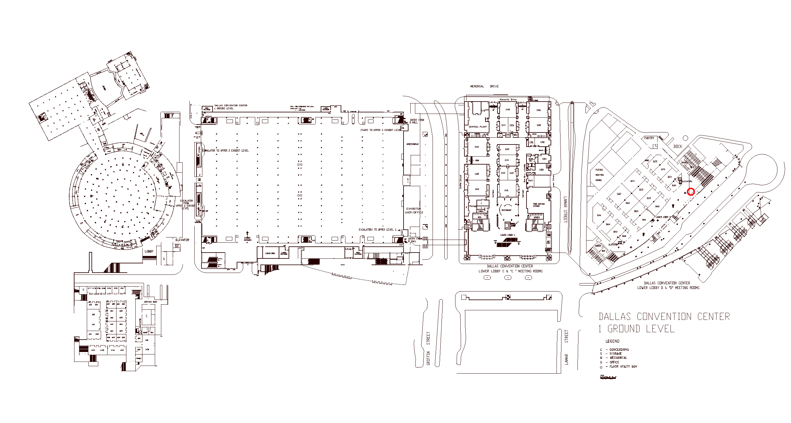
CAD
Image Gallery
Concourse - Exhibition Level
Hall A/B Lobby
Hall C Lobby
Hall E Lobby - Top of Escalators
Hall E Lobby
Hall E
Hall F Lobby
Hall F Prefunction
L1 Entry - Lower Lobby 1
L1 Entry - Lower Lobby 2
L3 - Bluffview Room
L3 Lobby - Top of Escalators
Lower Lobby C 1
Lower Lobby C 2
Lower Lobby C 3
Lobby D - Registration (Oculus) 1
Lobby D - Registration (Oculus) 2
Omni Hotel
Omni - Hotel Lobby 1
Omni - Hotel Lobby 2
Omni - L2 - Between Escalators
Omni - L2 - Offices by the Skywalk
Omni - L3 - Dallas Ballroom Prefunction
Omni - L3 - Top of Escalators
Omni - L5
Press Lounge - Room D171-173
Contact Us
Level 1 Entry - Lower Lobby 1
Gallery
Dimensions
Stairs to Hall E/F Lobby
#
Name
Dimensions
Rise
6"
A
Width - wall to wall
27' 7"
Number of risers
48 (3 sets of 16)
Entrance - Back Wall near stairs
#
Name
Dimensions
A
Block Wall Height
7' 11"
B
Block Wall Width
17' 6"
C
Doorway
9'
D
Wall width to crease/curve
7' 5"
E
Wall width from Dooway to Edge
14' 7-1/2"